Comment fabriquer une caisse en bois solide et saine pour y mettre tout ce que vous souhaitez stocker et organiser : pommes de terre, fruits, conserves, outils, matériel de sport ou de bricolage… ? Cette caisse de rangement peut servir également de mini table, de bout de canapé, d’assise.

Ces caisses sont fabriquées avec des lattes récupérées sur des palettes, ce qui permet, à moindre coût, d’obtenir de beaux rangements, robustes et pratiques
Vous pouvez utilisez toute sorte de lattes de bois : chutes de plancher ou de lambris, reste de planches ; il faut que le bois soit non traité, (voir ici comment choisir les bonnes palettes pour créer des meubles ou des objets ?), et idéalement d’une épaisseur de 14 à 20 mm.

Ce plan permet de fabriquer une caisse de rangement aux dimensions 30 X 46 x (hauteur 28,5) cm, relativement compacte. Bien sûr, les dimensions peuvent être adaptées, pour faire du « sur-mesure »
A titre de comparaison, les dimensions d’une caisse à pomme sont de 40 x 50 x (hauteur 30) cm. Une petite caisse sera de 30 X 20 x (hauteur 17) cm. Les dimensions proposées sur le plan sont donc intermédiaires supérieures.
BOIS de PALETTES
8 grandes lattes d’environ 110 cm (~ 7,5 x 1,8 cm *),
débitées comme suit :
– 6 lattes de 41,5 cm (Grands côtés)
– 6 lattes de 30 cm (Petits côtés)
– 4 lattes de 25 cm (Montants)
– 4 lattes de 30 cm (Fond)
QUINCALLERIE
12 vis Ø 4 x 35 mm
une trentaine de clous tête plate de 50 mm
TECHNIQUES UTILISEES
Démonter une palette – Réaliser un assemblage par vis
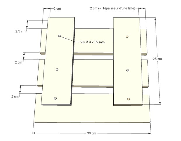
1. Assembler trois lattes de 30 cm (en les espaçant tous les 2 cm) à deux lattes de 25 cm. Les lattes verticales sont placées à environ 2 cm (une épaisseur de latte) des bords des lattes horizontales et dépassent de 2,5 cm en haut. Ce décalage permet de créer des pieds quand on utilise la caisse en table et également d’empiler les caisses les unes dans les autres.

Avant de fixer, vérifiez bien les angles droits. Utilisez des serre-joints pour tout maintenir en place puis assemblez avec des vis Ø 4 x 35 mm.
Répétez l’opération pour l’autre côté.
2. Clouer les lattes longues à un des petits côtés en utilisant une cale (tabouret sur lequel sont empilées des chutes de bois). Utiliser des clous de 50 mm et un marteau ou bien un cloueur. Répéter pour les autres grandes lattes.

Si vous n’êtes pas à l’aise pour clouer, faites des avant-trous dans la première épaisseur de bois (avec une mèche à bois fine et une visseuse) ou bien utilisez des vis
Mon conseil
Prenez le temps de bien préparer les deux premiers flancs de la caisse. Les autres lattes vont venir s’y fixer.

3. Continuer en retournant le montage et en plaçant le deuxième (petit) coté au dessus. Fixer comme à l’étape précédente.
4. Clouer les 3 lattes restantes entre les flancs.
D’autre idées sur le même sujet ?
Faire soi-même : Un banc de méditation pliant
Fabriquer : Cubes caisse en bois multi-usage
Cette belle caisse de rangement trouvera sa place au garage, au jardin, dans la chambre des enfants et même dans le salon. Tour à tour contenant, table, tabouret, mini bibliothèque, la caisse en bois de palettes peut rendre de multiple services à la maison, lors de déménagement ou de vacances nomades…

Six caisses empilées forment une charmante mini bibliothèque ou un espace de rangement modulable…

© : Ce plan et ce bricolage de caisse en bois ainsi que les images d’illustration sont issus du livre « Meubles en bois de palettes, Nathalie Boisseau, Editions Eyrolles